Samonosná brána bez stĺpikov 4000x1000mm vrátane príslušenstva na montáž

- Kompletné špecifikácie
- Hodnotenie 0
- Na stiahnutie
Samonosná brána bez stĺpikov 4000x1000mm vrátane príslušenstva na montážNie je skladom960 EUR/ ks780 EUR bez DPH
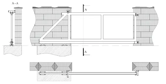
Posuvná samonosná brána bez vodiaceho a dojazdového stĺpika, JAKL pozinkovaný profil, pre vlastnú dodatočnú výplň s inštaláciou do rámu, popr. na rám, avšak bez možnosti presahu. Horné vedenie, dojazdová kapsa spodná a horná vr. držiakov. Nosný profil vr. ložiskových vozíkov a všetkého príslušenstva.
Rozlišuje sa ĽAVÁ / PRAVÁ (pri pohľade z pozemku)
Vhodné pre osadenie automatickým pohonom
Zostava obsahuje:
- kompletná konštrukciu brány z JAKL pozinkovaných profilov
- nosník samonosného systému, pozinkovaný
- ložiskové vozíky, pozinkované
- horné vedenie vr. držiaku, pozinkované
- veko s nájazdovým kolom, pozinkované
- spodná dojazdová kapsa vr. držiaku, pozinkovaná
- horná dojazdová kapsa vr. držiaku, pozinkovaná
Mieru možno upraviť podľa požiadaviek
Pre samostatnú montáž
Upozornenie: Všetky brány sú vyrábané na zákazku, podľa presných požiadaviek zákazníka, brány nie sú skladom. Uvedené ceny sú orientačné, pre neustály rast cien materiálov. Presnú cenu brány Vám radi vypočítame cez kontaktný formulár na našej stránke https://www.videri.sk/pohony-bran/Kalkulacia-na-ploty-a-brany-a6_0.htm alebo priamo cez mail: videri@videri.sk.
Montáže brán vykonávame max. do 50 km od sídla firmy.

